Ingatlanok

Komárom kertvárosában kifogástalan,kulcsrakész,korszerű ikerházi lakás eladó!

eladoikerhazKomárom
Alaprajzok
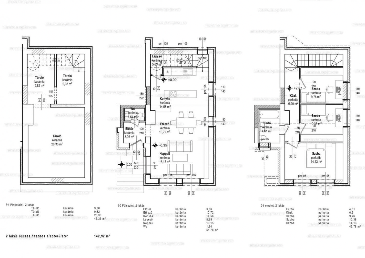
Alaprajz

Komárom kertvárosi részén, Szőnyben eladó új építésű, A+ energiabesorolású AZONNAL KÖLTÖZHETŐ ikerházi lakás várja új tulajdonosát!

144 m²
• nappali
• 3 szoba
• 1 fürdőszoba
• 2 wc

Az ingatlan modern, innovatív megoldásokkal és energiagazdálkodásra optimalizált gépészettel, minőségi építési anyagokkal készült.

3 szintes elrendezésének köszönhetően tágas és a jól átgondolt tervezéssel maximálisan kihasználja az elérhető teret.
-Földszinten:
• tágas nappali
• modern konyha (A konyhabútor és konyhasziget az új tulajdonos igénye szerint kivitelezhető)
• különálló WC
-Emeleten:
• 3 hálószoba
• fürdőszoba káddal és zuhanyzóval
• különálló WC
-Pinceszinten:
• praktikus tárolóhelyek
• mosókonyha
• gépészeti helyiségek

Részletes tudnivalók:
-DAIKIN hőszivattyús rendszer biztosítja a ház kellemes padlófűtését, illetve a melegvizet is. A+ energia besorolású, a legtakarékosabb fűtési megoldás napjainkban. A kiépített klíma kiállások a tetőtérben. Az ingatlan minőségi burkolatokkal, prémium beltéri ajtókkal, valamint 3 rétegű műanyag nyílászárókkal, szúnyoghálóval és redőnnyel van felszerelve.
-A ház beton alapon Porotherm falazattal épült, 15 cm vastag homlokzat szigetelést kapott és nemesvakolattal vonták be. Vasbeton födémszerkezet és faszerkezetű nyeregtető zárja, betoncseréppel.
-A telek 855 m², körbezárt füvesített kerttel várja a kertvárosi életre vágyó lakókat. A kert alkalmas hobbi kertészkedésre, grillezésre és játszótér kialakítására egyaránt. Mérete miatt könnyen karbantartható.
-A ház előtt térkövezett kocsibeálló könnyíti meg a parkolást.
-Az ingatlan per-, teher- és igénymentes, azonnal birtokba vehető!


Ez a modern ikerházi lakás ideális választás mindazoknak, akik egy energiahatékony, modern otthonra vágynak, közel a városhoz, mindezt nyugodt, zöld környezetben.

Ha az ingatlan elnyerte tetszését, ne maradjon le erről a szuper lehetőségről, hívjon minket még ma, és tekintsük meg az ingatlant együtt!


Irodánkban teljes körű, naprakész pénzügyi tanácsadással, illetve kedvezményes ügyvédi háttérrel állunk szíves rendelkezésére!

Az ingatlan jellemzői

Alapadatok

Ingatlantípus
Ikerház
Státusz
Eladó
Irányár
86 400 000 Ft
Város
Komárom
Irányítószám
2921

Méretek

Alapterület (m²)
144 m²
Telek (m²)
855 m²

Helyiségek

Szobák
4
Fürdő
1
WC
2

Minőség és állapot

Állapot
Új építésű
Épület állapota
Új
Homlokzat állapota
Új
Szerkezet
Tégla
Energetikai tanúsítvány
A+
Építés éve
2024

Komfort és felszereltség

Szigetelés
Egyéb hőszigetelés
Fűtés
Hőszivattyú
Hűtés
Klíma előkészítés
Megközelíthetőség
Főúthoz közel
Bútorozott
Nem

Környezet és megjelenés

Tájolás
DK
Nyílászárók típusa
muanyag
Kilátás
Kertre néző
Zajszint
Csendes utcára néz
Kert
Hátsókert
Konyha
Amerikai konyha

Státusz

Új/használt
Új
Költözhetőség
Azonnal költözhető

Egyéb

Jelmondat
Komárom kertvárosában kifogástalan,kulcsrakész,korszerű ikerházi lakás eladó!
← Vissza az ingatlanokhoz