Ingatlanok

Modern minimalizmus, maximális kényelem!

kiadolakasTata
Alaprajzok
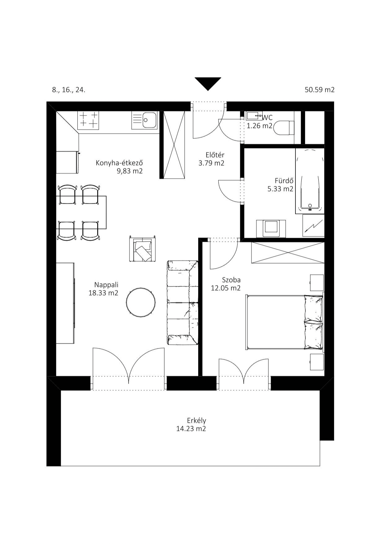
Alaprajz

Kiadó vadonatúj, még soha nem lakott lakás, Tata legszebb lakóparkjában, gyönyörű környezetben, a Fényes fasoron!

A 26 lakásos modern, lapos tetős, új társasház rendezett, zárt lépcsőházának magasföldszintjén található a lakás.

52 nm | amerikai konyhás nappali + 1 hálószoba | 14 nm-es erkély

Most bérelhetsz ki egy teljesen új, 2025-ben átadott, modern és energiatakarékos lakást, ahol még senki nem lakott. A praktikus elrendezésű, magasföldszinti ingatlan ideális pároknak vagy egyedülállóknak, akik hosszú távra keresnek igényes otthont.

Főbb jellemzők:

- Amerikai konyhás nappali és külön nyíló hálószoba
- Fürdőkádas fürdőszoba
- 14 nm-es tágas, jól használható erkély
- Energiatakarékos hőszivattyús padlófűtés
- Fan-coil fűtés/hűtés a nappaliban
- Autóbeálló a mélygarázsban
- 3,5 nm-es saját tároló

A lakás beépített, gépesített konyhabútorral kiadó minimum 1 évre! Beköltözéskor 2 havi kaució letétele szükséges!
Dohányzás és kisállat tartása a lakásban nem megengedett.

Ha egy modern, kényelmes és fenntartható otthont keresel, ez a lakás kiváló választás.
Érdeklődj üzenetben vagy telefonon.

Az ingatlan jellemzői

Alapadatok

Ingatlantípus
Lakás
Státusz
Kiadó
Irányár
280 000 Ft
Város
Tata
Városrész
Tóváros

Méretek

Alapterület (m²)
52 m²
Terasz/erkély (m²)
14 m²

Helyiségek

Szobák
2
Fürdő
1
Szintek száma
3
Lakások száma az épületben
26

Minőség és állapot

Épület állapota
Új
Homlokzat állapota
Új
Lépcsőház állapota
uj
Szerkezet
Tégla
Lépcsőház
Zart

Komfort és felszereltség

Szigetelés
EPS hőszigetelés
Fűtés
Padlófűtés, Hőszivattyú, Fan-coil
Hűtés
Fan-coil
Megközelíthetőség
Aszfalt úton megközelíthető

Környezet és megjelenés

Tájolás
eny
Nyílászárók típusa
hoszigetelt,redony
Zajszint
Nem utcára néz
Terasz / Erkély
Erkély
Konyha
Amerikai konyha

Státusz

Költözhetőség
3 hónapon belül

Egyéb

Jelmondat
Modern minimalizmus, maximális kényelem!
← Vissza az ingatlanokhoz