Ne olvassa el(!), ha nem szereti a minőséget, a modern, új és energiahatékony ingatlanokat!
Ha szereti ezeket de úgy gondolja, hogy csak irreálisan magas áron juthat hozzá, akkor mindenképp olvassa végig, mi mindent kaphat Tata központjában a meghirdetett, barátságos áron!
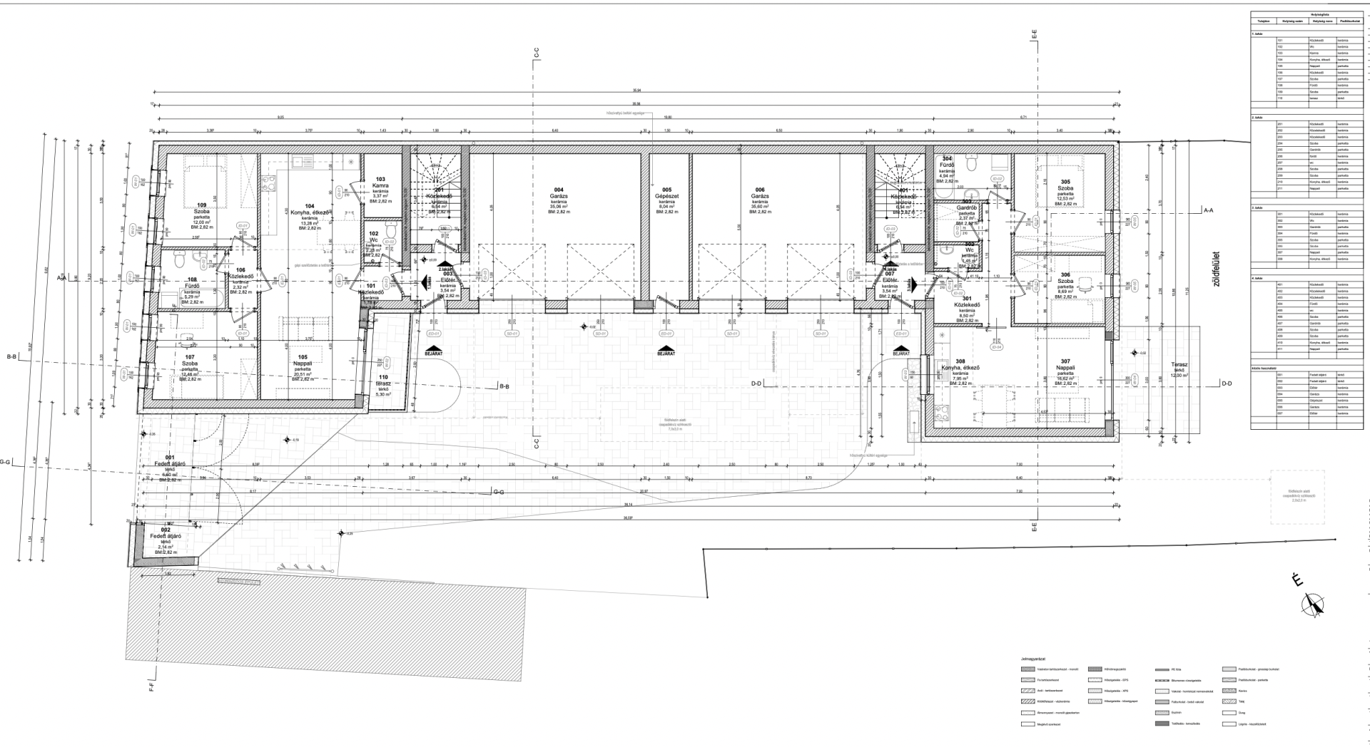
Tata központjában épülő, energiahatékony, prémium, kulcsrakész kivitelezésű, négylakásos társasház 1-es számú lakását mutatom be.
Megbízható beruházó munkája valósul meg, fenntartható és élhető lakóközösséget hoz létre, profi tervező által készített tervek szerint, szem előtt tartva a legújabb technológiai megoldásokat és az energiahatékonyságot.
A kerítéssel körbekerített társasház udvarába elektromos kapun juthatunk be és parkolhatunk saját garázsunkba, ahonnan közvetlenül beléphetünk egy közös előtérbe, onnan nyílik a 78,54nm-es lakás, 5,3nm-es terasszal.
A lakás elosztása praktikus, kellemes, tágas, napfényes, élhető terek jellemzik, ajánlom figyelmébe részletes alaprajzunkat!
A kiváló hő- és hangszigetelés garantált, köszönhetően:
- a 30-as porotherm falazatnak, melyet 20cm-es dryvit szigeteléssel látnak el,
- a lábazaton 15- illetve 18+4 cm vastag Austrotherm XPS Premium P szigetelésnek,
- az épület záró hőszigetelésnek, a szarufák és a fogópárok között elhelyezett 30 cm vastag kőzetgyapotnak
- a 6légkamrás, 3rétegű üvegezésű nyílászáróknak.
Az otthon melegéről, a melegvíz előállításáról és a kellemes nyári hőérzetről lakásonként saját levegő-víz rendszerű hőszivattyú gondoskodik, padlófűtés rendszerre és mennyezeti fan-coilra csatlakoztatva.
Győződjön meg a magas minőségű műszaki tartalomról, és kérje a műszaki leírást tartalmazó dokumentumokat.
Foglalja le időben, így nem csak kedvező, bevezető áron juthat hozzá új otthonához, ám a burkolatokat, szanitereket és beltéri ajtókat még kiválaszthatja, így a belső dizájn saját ízlés szerint alakítható.
Saját használatú garázs beálló megvásárolandó a lakáshoz: 8M Ft-ért.
Közös használatú tároló: 8,04 m2
Várható átadás: 2026.június
Amennyiben lefoglalja még az építkezés során, úgy mentesül az illetékfizetési kötelezettsége alól (-4%!).
Irodánkban banksemleges hitelügyintézéssel, kedvezményes ügyvédi háttérrel, jogi tanácsadással állunk rendelkezésére!
Tata központjában új építésű, prémium lakás eladó!
eladolakasTata
Alaprajzok

Az ingatlan jellemzői
Alapadatok
- Ingatlantípus
- Lakás
- Státusz
- Eladó
- Irányár
- 78 550 000 Ft
- Város
- Tata
- Városrész
- Tóváros
Méretek
- Alapterület (m²)
- 81 m²
- Terasz/erkély (m²)
- 5.3 m²
Helyiségek
- Szobák
- 3
- Fürdő
- 1
- WC
- 2
- Szintek száma
- 1
- Lakások száma az épületben
- 4
Minőség és állapot
- Épület állapota
- Új
- Homlokzat állapota
- Új
- Lépcsőház állapota
- uj
- Szerkezet
- Tégla
- Építés éve
- 2025
Komfort és felszereltség
- Szigetelés
- Dryvit (homlokzati hőszigetelés)
- Fűtés
- Fan-coil, Padlófűtés, Hőszivattyú
- Hűtés
- Fan-coil
- Megközelíthetőség
- Főúthoz közel
Környezet és megjelenés
- Tájolás
- DK
- Nyílászárók típusa
- muanyag
- Kilátás
- Utcára és belső udvarra néző
- Terasz / Erkély
- Terasz
- Konyha
- Amerikai konyha
Státusz
- Új/használt
- Új
- Költözhetőség
- 3 hónapnál később
Egyéb
- Jelmondat
- Tata központjában új építésű, prémium lakás eladó!