Eladásra kínálunk Székesfehérvár családi házas övezetében egy igazi luxus önellátó házat.
Az ingatlanban található:
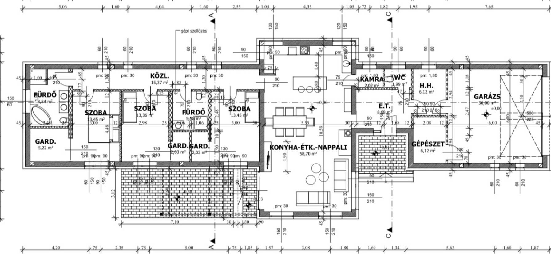
-előszoba
-tágas amerikai konyhás nappali kamrával
-3 hálószoba -mindegyikhez gardrób is tartozik
-2 fürdőszoba -zuhanyzóval-káddal
-szoláriumhelyiség
-garázs
A ház napelemekkel, napkollektorokkal felszerelt amely hőszivattyúval biztosítja a mennyezethűtést/padlófűtést, ezzel szinte 0-ra csökkentve a rezsiköltséget, valamint a gázkazán is megtalálható az ingatlanban. Az ablakok automata zsaluziával felszereltek. A biztonságról a kiépített riasztó és kamera rendszer gondoskodik. Az épülethez tartozik még egy fedett terasz jakuzzival ,illetve az udvaron egy napozó/pihenő rész is kialakításra került. A kert füvesített, gondozott ,melyhez az automata öntözőrendszer is hozzájárul. Parkolásra a ház előtt illetve a fedett garázsban is van lehetőség.Az ingatlan tágas ,felszerelt, azonnal költözhető.
Ha egy csendes utcában lévő ,kiváló lokációval rendelkező ,minden igényt kielégítő otthonra vágyik, akkor megtalálta. Amennyiben hirdetésünk felkeltette érdeklődését kérem keressen bizalommal. Jöjjön és nézzük meg együtt!
Irodánkban teljeskörű pénzügyi tanácsadással ,kedvezményes ügyvédi háttérrel, lakberendezővel, kivitelezővel állunk szíves rendelkezésére!
Exkluzív,luxus otthon Székesfehérvár kertvárosi övezetében
eladocsaladi_hazSzékesfehérvár
Alaprajzok

Az ingatlan jellemzői
Alapadatok
- Ingatlantípus
- Családi ház
- Státusz
- Eladó
- Irányár
- 219 000 000 Ft
- Város
- Székesfehérvár
- Irányítószám
- 8000
Méretek
- Alapterület (m²)
- 258 m²
- Hasznos alapterület (m²)
- 258 m²
- Telek (m²)
- 863 m²
Helyiségek
- Szobák
- 4
- Fürdő
- 2
- WC
- 2
Minőség és állapot
- Állapot
- Luxus
- Épület állapota
- Újszerű
- Szerkezet
- Tégla
- Ház stílusa
- Mediterrán
- Építés éve
- 2020
Komfort és felszereltség
- Fűtés
- Hőszivattyú
- Hűtés
- Mennyezeti hűtés
- Megközelíthetőség
- Aszfalt úton megközelíthető
Környezet és megjelenés
- Kilátás
- Kertre néző
- Zajszint
- Csendes utcára néz
- Kert
- Füvesített
- Terasz / Erkély
- Terasz
- Konyha
- Amerikai konyha
- Felszereltség
- Riasztó
Státusz
- Új/használt
- Újszerű (10 éven belül épült)
- Költözhetőség
- Azonnal költözhető
Egyéb
- Jelmondat
- Exkluzív,luxus otthon Székesfehérvár kertvárosi övezetében