Tatán, egy csendes, nyugodt környéken kínálunk megvételre egy 180 m²-es, két szintes, Habisolból épült családi házat, amely egy 873 m²-es, gondozott, füvesített telken helyezkedik el. Az ingatlanhoz tartozik egy 20 m²-es garázs is.
A ház 1993-ban épült, majd 2015-ben nagyobb felújításon esett át: megújult a külső vakolat, a tetőszerkezet fóliázást és hőszigetelést kapott, részben a tetőlécek is kicserélésre kerültek, valamint a terasz új burkolatot kapott. A cserépfedésű családi ház 6 cm-es külső szigeteléssel rendelkezik, így energiatakarékosan fenntartható.
A fűtésről Viessmann gázkazán, hangulatos cserépkályha, valamint két hűtő-fűtő klíma gondoskodik.
A korszerű biztonsági és kényelmi felszereltség része a riasztórendszer, az automata öntözőrendszer és a nappali–éjszakai 3×25A áramellátás.
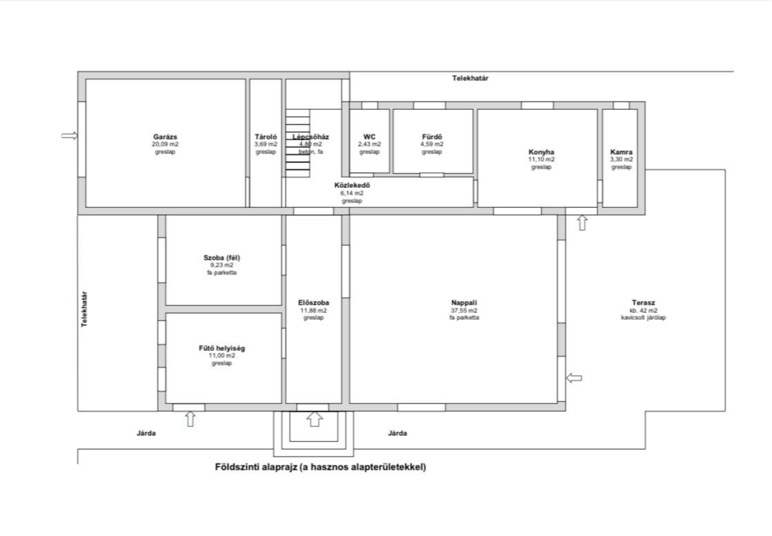
A földszinten tágas nappali, konyha, egy kisebb szoba, fürdőszoba, külön WC, fűtőhelyiség és tároló kapott helyet. Az emeleten négy hálószoba, egy polcozott gardróbszoba, valamint fürdő és WC található. A burkolatok változatosak (parketta, járólap, szalagparketta), a nyílászárók részben műanyagból, részben fából készültek, kétrétegű üvegezéssel, részben redőnnyel és szúnyoghálóval felszerelve. A beltéri ajtók mind fából készültek, az emeleten üvegezett faajtók teszik világosabbá a tereket.
A ház vételárába beletartozik a beépített konyha, a garázs polcrendszere és a gardróbszoba teljes berendezése.
A kertben cserépfedéses fedett terasz, kisház és tároló is helyet kapott, valamint egy engedélyezett, öt gyűrűből álló ásott kút is megtalálható, amely praktikus megoldást kínál a locsoláshoz és a kert gondozásához,így minden adott egy kényelmes, családbarát otthonhoz.
Ideális választás többgyermekes családok számára, akik tágas, jól elosztott és azonnal költözhető házat keresnek Tatán.
Irodánkban teljeskörű pénzügyi tanácsadással, kedvezményes ügyvédi háttérrel, jogi tanácsadással állunk rendelkezésére!
Tágas terek,tökéletes családi ház Tatán
eladocsaladi_hazTata
Alaprajzok


Az ingatlan jellemzői
Alapadatok
- Ingatlantípus
- Családi ház
- Státusz
- Eladó
- Irányár
- 147 000 000 Ft
- Város
- Tata
- Irányítószám
- 2890
- Helyrajzi szám
- 533
Méretek
- Alapterület (m²)
- 180 m²
- Hasznos alapterület (m²)
- 180 m²
- Telek (m²)
- 873 m²
- Terasz/erkély (m²)
- 42 m²
Helyiségek
- Szobák
- 3
- Félszobák
- 4
- Fürdő
- 2
- WC
- 2
Minőség és állapot
- Állapot
- Átlagos
- Épület állapota
- Felújított
- Homlokzat állapota
- Felújított
- Szerkezet
- Tégla
- Energetikai tanúsítvány
- E
- Építés éve
- 1993
Komfort és felszereltség
- Szigetelés
- Dryvit (homlokzati hőszigetelés)
- Fűtés
- Gázkazán
- Hűtés
- Klíma
- Megközelíthetőség
- Főúthoz közel
- Bútorozott
- Nem
Környezet és megjelenés
- Tájolás
- DK
- Nyílászárók típusa
- muanyag,fa
- Kilátás
- Kertre néző
- Zajszint
- Csendes utcára néz
- Kert
- Parkosított, Füvesített, Bekerített kert
- Terasz / Erkély
- Kertkapcsolat
- Konyha
- Ablakos konyha
Státusz
- Új/használt
- Használt
- Költözhetőség
- 3 hónapon belül
Egyéb
- Jelmondat
- Tágas terek,tökéletes családi ház Tatán